


WebPropertyDetail.share-property.title
Miro Tmej
Broker & Partner
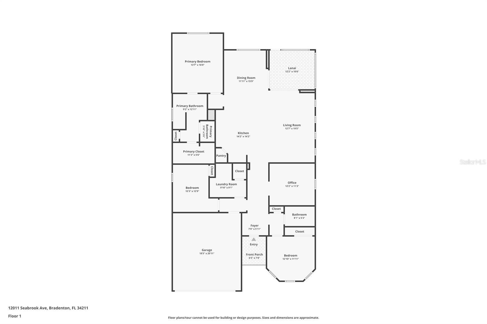
Experience stunning water views from this beautifully updated home in the desirable Mallory Park community, just steps from the pool, clubhouse, fitness center, and children’s park, offering all the benefits without the upkeep or expense of a private pool. Located in the heart of Lakewood Ranch, this property offers the perfect blend of lifestyle, location, and low maintenance. Enjoy beautiful morning sunrises from the screened lanai, overlooking a serene natural wooded landscape, lake, and community pier. The open-concept floor plan features a great room with a custom mirrored wall, tray ceilings with contrast paint, crown molding, and ceiling fans in every room for efficient cooling. The home includes three bedrooms plus a versatile den, all with upgraded luxury vinyl floors. The kitchen is outfitted with granite countertops, dark painted cabinetry, upgraded appliances, and plenty of storage. Every closet, the pantry, laundry room, and garage have custom built-in cabinetry, adding convenience and organization throughout. Mallory Park residents enjoy top-notch amenities including a gated entrance, pool, clubhouse, pickleball courts, playground, and easy access to Bob Gardner Park, perfect for walks, runs, frisbee golf, or time with kids and pets. Low-cost HOA fees include lawn care, adding to the low-maintenance appeal. Located near A-rated schools and all that Lakewood Ranch has to offer, this home delivers an unbeatable combination of comfort, convenience, and community. Be sure to view the 3D virtual tour and schedule your private showing today!
3
2
2
0,19 acres
2000 sqft
2017
Single Family Residence
Pride of ownership defines this three-bedroom, two-bath Arezzo model residence in the desirable Esplanade Golf and Country Club. Impeccably maintained and extensively upgraded, this home reflects thoughtful design focused on comfort and quality. Set on a private homesite with a front water view, the property features an expanded lanai offering 375 square feet of outdoor living. The space includes new panoramic screening, remote-controlled storm screens, built-in dimmable Nebula lighting, and designer pavers for an elegant finish. The exterior has been freshly repainted and fitted with new impact-resistant windows, adding durability and peace of mind. Interior enhancements include a new HVAC system, whole-house water filtration, and luxury vinyl plank flooring in a neutral tone. The kitchen showcases new one-level quartz countertops, an on-trend sink and backsplash, and new refrigerator and dishwasher. Both baths have been updated with quartz countertops, new sinks, and lighting fixtures. The primary shower features ceiling-height tile and new fixtures for a clean, contemporary aesthetic. Additional features include Closet Tec custom systems, new washer and dryer, and plantation shutters throughout. This home has been thoughtfully prepared for its next owner. Esplanade offers residents exceptional resort-style amenities, including two large pools, the Bahama Bar, the Amenity Center, the Wellness Center, and the Clubhouse with restaurant and the Barrel House Bistro bar. Recreational opportunities include pickleball, tennis, and pay-to-play golf. A variety of clubs and resident-organized groups enhance the community’s lifestyle. Located just 40 minutes from Sarasota’s cultural attractions, fine dining, and the beaches of Siesta Key, Anna Maria Island, and Armands Circle, this residence provides an ideal blend of luxury and convenience. Lakewood Ranch continues to be recognized as the nation’s top-selling multigenerational community. Come and enjoy!
Single Family Residence
Award winning Leeds Platinum built villa. Upgrades include Porcelain plank flooring in all but baths and Sun Room. Crown Molding in Liv./Kit/Din., 5.5 in baseboard in all but baths and laundry room, Hurricane impact windows in Sun Rm, Hurricane shutters for remaining windows. Upgraded faucets throughout. Grade 2 cabinets including laundry room. Built in shelf for storage in laundry room. Quartz countertops, upgraded range, refrigerator, washer, dryer. A true Great Room/Open concept including the dimensions for kitchen, living room and dining area. Master BR has large walk-in closet and regular closet with double shelving. Guest bedroom has a walk-in closet with extra shelving. Upgraded decorative wall tile in tub and shower areas. 8 ceiling fans including bathrooms. Pull down stairs in garage and professional floor finish in garage. Shelves and storage racks in garage included. Extra electrical outlets in garage. Gated Entry. Pool refurfaced Oct. 2025. Security cameras at gated entrance and amenity center. Fitness center. Pickle board court and dog park are popular with residents. Must see to appreciate the pristine care during the original ownership.
Single Family Residence
Best Priced Bay Lake Estates Home – Minutes from Anna Maria Island Beaches and Sarasota. Welcome to Bay Lake Estates in Bradenton, one of the most desirable and sought-after neighborhoods on Florida’s Gulf Coast. This spacious 3 bedroom, 2.5 bathroom single-family home for sale in Bradenton, Florida offers over 3,500 sq ft of living space on a beautifully landscaped oversized 12,196 SqFt. corner lot. Built in 2007, this home combines modern construction with timeless coastal Florida charm, making it one of the best values in Bradenton real estate and the best-priced home near Anna Maria Island. Includes ALL BRAND NEW APPLIANCES! Perfectly located just minutes from Anna Maria Island, Holmes Beach, Bradenton Beach, Longboat Key, and the Gulf of America, this property offers buyers the ideal Florida lifestyle. Whether you are searching for a primary residence, vacation home, or income-generating short-term rental investment property near the beach, this Bay Lake Estates home checks every box. Inside, enjoy a bright and open floor plan with soaring ceilings, multiple living and dining areas, and a versatile converted garage space that can function as a home office, private gym, media room, playroom, or guest suite. The large kitchen features a breakfast bar, ample cabinet storage, and a seamless flow into the main living areas—perfect for entertaining friends and family. Upstairs, spacious bedrooms and bathrooms provide privacy and comfort, making this home ideal for families, seasonal homeowners, or investors looking for high-demand rentals close to Sarasota and Anna Maria Island. With its prime Bradenton location near Florida’s award-winning white sandy beaches, boating, fishing, golf courses, waterfront dining, shopping, entertainment, IMG Academy, Sarasota cultural attractions, and top-rated Manatee County schools, this property offers unbeatable convenience and lifestyle. Homes in Bay Lake Estates rarely come available, and this one is priced to sell—making it one of the best real estate deals in Bradenton and Anna Maria Island today.Don’t miss this rare opportunity to own a spacious home in Bay Lake Estates. Schedule your private showing today and start living the Florida dream!